Mẫu thiết kế nhà phố 4 tầng chiều rộng 7m
Mẫu thiết kế nhà phố chiều rộng 7m là một trong những sản phẩm có kiến trúc nhà đẹp 4 tầng mang phong cách hiện đại. Với tính thẩm mỹ cao, công năng sử dụng tốt mẫu nhà đã mang lại rất nhiều sự mới lạ.
Với lợi thế diện tích chiều rộng mặt tiền 7m, mẫu thiết kế nhà phố hiện đại đã được các kiến trúc sư thiết kế theo lối không gian mở. Điều này sẽ giúp cho không gian căn nhà thoáng mát và rộng rãi, khi bước vào trong nhà sẽ có được cảm giác dễ chịu và thoải mái nhất.
Về kiến trúc, tổng thể của ngôi nhà được xây dựng theo 4 tầng, mỗi tầng có những phòng riêng và được sử dụng 2 tông màu sáng và tối làm chủ đạo kết hợp với những chi tiết, họa tiết mỹ thuật đầy tinh tế. Đây cũng được xem là cách thiết kế đang được ưa chuộng nhất trong mẫu thiết kế nhà phố hiện nay.
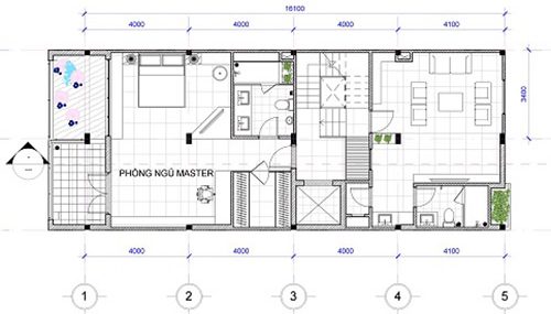
Mặt bằng bố trí công năng sử dụng tầng 1
Tầng 1 được thiết kế bao gồm 1 gara, 1 phòng khách, có thể là 1 hồ nước, phòng ăn, phòng bếp, phòng vệ sinh chung.
Phòng khách được thiết kế với không gian mở thoáng bởi đây chính là phần trung tâm sinh hoạt chính của gia đình, vừa hướng ra mặt tiền vừa liên kết với phòng ăn, nhà bếp, cầu thang, gara. Với cách bố trí liên hoàn này đã phát huy được hầu hết các công năng sử dụng và tiết kiệm diện tích, mang đến 1 không gian sinh hoạt ấm cúng và tiện lợi.
Phòng ăn, nhà bếp và phòng vệ sinh chung được quy hoạch ngay phía sau phòng khách. Các khung cửa cao rộng được trải đều giúp cho khu vực này có thể lấy đủ ánh sáng từ bên ngoài vào, cùng với những cơn gió nhẹ theo hơi nước từ hồ bơi sát bên.
Mặt bằng và không gian bố trí công năng sử dụng tầng 2
Trên tầng 2 được thiết kế khá cầu kỳ và công phu để được đón gió và lấy ánh sáng từ các hướng. Kế sau 2 phòng ngủ là phòng tắm với diện tích thiết kế rộng rãi và thoáng đãng hơn với các khung cửa bố trí hài hòa theo từng hướng, đem đến cảm giác tiện nghi.
Ngoài ra, tại ban công còn được dựng lên bởi khu vực sân vườn đầy thu hút. Đây chính là nơi được ví như lá phổi xanh cung cấp các dòng năng lượng khí mới và thanh lọc cơ thể…
Vị trí ban công phía trước phòng được bố trí cây xanh, hoa tạo cảnh quan xanh mát với bộ bàn ghế mềm mại.
Phòng ngủ hướng ra phía ban công được trang bị đầy đủ tiện nghi rất hiện đại. Chất lượng cuộc sống có trong lành thì điều quý giá nhất chính là sự giao thoa giữa nước và cây xanh.
♦ Có thể Quý vị sẽ cần: Đơn giá thiết kế nhà phố biệt thự mới cập nhật
Phòng ngủ được sử dụng tông màu sáng khá bắt mắt nhờ vào cách bố trí ấn tượng
Tại tầng 3, 4 là phòng dành riêng cho con cái và phòng thờ, nơi đây vừa hướng ra mặt tiền thoáng mát vừa liên kết với phòng thờ yên tĩnh. Tiện ích mà tầng này đem lại chính là sự thiết kế khá ấn tượng với kết cấu bê tông lửng trên nền mái thái độc đáo và mới lạ.
Mặt bằng tầng 3 bố trí 2 phòng ngủ, phòng thờ và khoảng ban công rộng rãi phía trước làm không gian thư giãn cho các thành viên trong gia đình
Bài viết khác
-

Hiểu đúng về các loại cốt gỗ công nghiệp – Chọn chuẩn cho nội thất bền lâu
Trong xây dựng nhà trọn gói, thiết kế và thi công nội thất là giai đoạn quan trọng quyết định đến giá trị sử dụng, thẩm mỹ và sự tiện nghi của không gian sống. Và việc lựa chọn vật liệu cốt gỗ công nghiệp phù hợp là một trong những yếu tố đóng vai trò cốt lõi cho quá trình thi công các hạng mục: Tủ bếp, tủ áo, kệ tivi, giường ngủ, vách ngăn, bàn trang điểm, bàn làm việc,…
-

Mẫu thiết kế nội thất biệt thự siêu ấn tượng
Bạn có thể để ý thấy được điều gì trong không gian phòng trên hình không. Đó chính là cách phối màu theo sự giảm đần của màu sắc: xám, xám nhạt, xám trắng, trắng. Tất cả toát lên sự sang trọng, tao nhã, quý phái nhưng không kém phần quý phái thanh lịch.
-

4 nguyên tắc không thể bỏ qua khi thiết kế nội thất nhà lô phố
Để hoàn thiện nhà ở, chúng ta phải đảm bảo việc thiết kế nội thất, đặc biệt với những nhà lô phố. Chúng được xây dựng giống nhau về kiến trúc nên nhìn có phần nhàm chán. Điều tạo nên sự khác biệt giữa các căn nhà chính là phần nội thất bên trong. Vì vậy, mọi người nên chú ý 4 nguyên tắc khi thiết kế để mang lại sự khác biệt cho căn hộ của mình.
-

Những ý tưởng thiết kế nội thất nhà phố 60m2 tiện nghi sang trọng
Những mẫu nhà phố hiện đại, sang trọng có kết cấu từ 2 đến 4 tầng, xây dựng trên nền đất hẹp ngang – rộng dài với diện tích 60m2 ví dụ như: Nhà phố 3 tầng ngang 4m dài 15m; nhà phố 2 tầng ngang 5m dài 12m… Được áp dựng thiết kế, xây dựng khá nhiều ở các trung tâm thành phố lớn như Thành phố Hồ Chí Minh, Đà Nẵng, Đồng Nai…
-

Những cách phối màu nội thất cho nhà phố đẹp ngất ngây
Trước tiên bạn phải lựa chọn màu sắc và sắp xếp phù hợp nhằm giúp cho ngôi nhà của mình thêm phần tráng lệ. Sự kết hợp hài hòa các màu sắc tạo ra sự cuốn hút và ấm áp cho tổ ấm của mình.
-

Cách chọn vật liệu ốp lát hoàn thiện giúp tăng thẩm mỹ ngôi nhà
Hôm nay Kiến Trúc Nét Việt xin giới thiệu đến Quý Khách bài viết Cách chọn vật liệu ốp lát hoàn thiện giúp tăng thẩm mỹ ngôi nhà, mong Quý Khách đón nhận và đóng góp ý kiến khi có sự sai sót.
-

Thiết kế phòng ngủ độc đáo mang lại giấc ngủ đầy năng lượng
Cố nhân có nói: “Ngày mới được bắt đầu từ đêm hôm trước” để có được một ngày làm việc tràn đầy năng lượng và hiệu quả chúng ta rất cần một giấc ngủ ngon, sâu và thỏa mái, nên việt thiết kế một phòng ngủ đẹp mắt, yên tĩnh và tiện nghi là điều hết sức cần thiết.
-

Cách thiết kế phòng tắm sang trọng hiện đại cho ngôi nhà của Bạn
Đối với nhiều người trong số chúng ta, thiết kế nhà đẹp thôi thì chưa đủ, mà phòng tắm phải sáng sủa, thoáng đãng và có đẹp mắt không mới là quan trọng. Có lẽ bởi vì phòng tắm gắn liền với những hoạt động cơ bản nhất, giúp vệ sinh cá nhân, thư giản, ngâm mình trong bể tắm để hồi phục năng lượng sau một ngày làm việc mệt mỏi, là không gian không thể thiếu trong bất kỳ ngôi nhà nào.
-

5 giải pháp chống nóng cho nhà phố
Nhà ống là kiến trúc rất điển hình và phổ biến hiện nay. Chúng có đặc điểm hẹp chiều ngang và san sát nhau nên thường bị thiếu sáng, thiếu gió và không khí đối lưu không tốt. Điều này khiến không khí trong nhà thường khá nóng, bí. Vậy giải pháp chống nóng cho kiến trúc nhà phố này là gì?
-

Làm thế nào để thiết kế đèn chiếu sáng phòng ngủ đẹp mắt
Phòng ngủ là không gian nghỉ ngơi cho các thành viên gia đình, nơi lưu giữ hạnh phúc, sức khỏe… do đó việc thiết kế nhà đẹp nói chung, thiết kế hệ thống đèn chiếu sáng đẹp cho phòng ngủ nói riêng có vai trò rất quan trọng. Ngoài những nguyên tắc cơ bản về độ sáng, màu sắc, chủng loại và vị trí đèn còn cần sự tinh tế trong thiết kế, phối hợp hài hòa với đồ nội thất.
-

6 lưu ý khi thiết kế nội thất phòng ngủ cho bé
Kiến Trúc Nét Việt xin chào quý vị. Khi xây nhà các bậc phụ huynh luôn muốn dành những điều tốt đẹp nhất cho thiên thần bé nhỏ của mình. Một trong những điều ấy là thiết kế cho bé một phòng ngủ riêng với đầy đủ nội thất. Việc thiết kế nội thất phòng ngủ cho trẻ có nhiều điểm khác biệt so với phòng của người lớn. Nên mọi người hãy chú ý đến 6 lưu ý khi thiết kế nội thất phòng ngủ cho bé như sau để mang đến một không gian thoải mái, an toàn và phù hợp với trẻ.
-

Thiết kế nội thất nhà phố đẹp như thế nào để phù hợp và tiết kiệm
Vì xây nhà là một việc lớn và tốn nhiều chi phí nên đa số một gia đình chỉ xây nhà một lần duy nhất, nên gia chủ thường không có nhiều kinh nghiệm. Gia chủ thường không hình dung ra được không gian ngôi nhà mình sau khi xây xong sẽ như thế nào? Vì vậy mà thiết kế nội thất nhà phố đẹp xuất hiện và trở thành một trào lưu giúp người có nhu cầu xây nhà rất nhiều.









